Sierra Del sol
Overlooking the Chisos mountains and the Big Bend National Park, the Sierra del Sol Home was our first South County project. We created the home’s design, drafted the plans, oversaw the construction and fabricated all the finishing details.
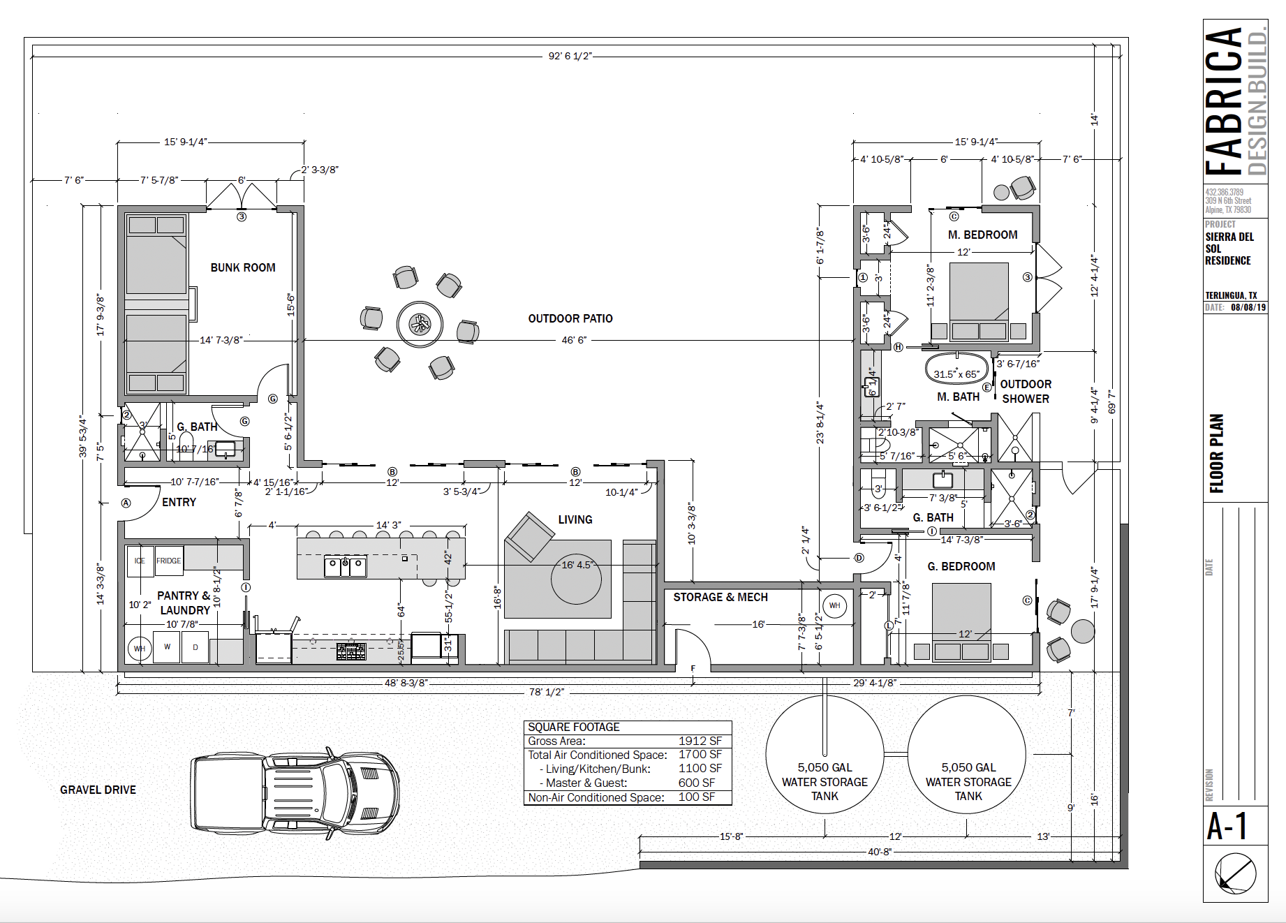
Sited on a steeply sloped hillside just under Reeds Plateau, the home is divided into two primary wings that separate the main living space/bunkroom from the more intimate master and guest suites. The outstretched wings frame a private patio while blocking the intense western exposure.
The homes textures, colors and materials were carefully selected to blend with the surrounding desert. The simple stucco mass is adorned with a sun portal and gates made with locally sourced stool stalks mounted to custom, powder-coated steel frames.
